Residential housing blocks drawings with electrical details in autocad file
Description
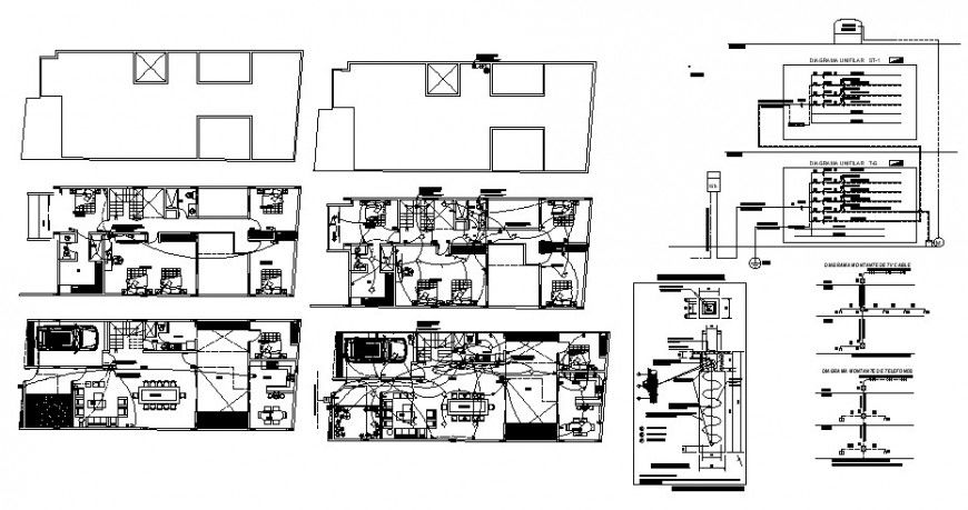
Residential housing blocks drawings with electrical details in autocad file that shows work plan of house with furniture blocks details and electrivcal installation layout plan details.Specification and circuits flow diagram along with fuse and circuits details also shown in drawing.
Uploaded by:
Eiz
Luna

