Electrical installation layout plan details 2d view autocad file
Description
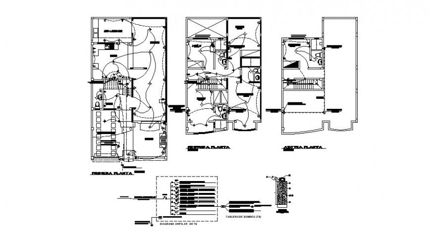
Electrical installation layout plan details 2d view autocad file that shows work plan of the house along with electrical installation layout plan details in the house. Electrical earthing wire details and circuits flow diagram details also shown in the drawing.
Uploaded by:
Eiz
Luna

