Public sanitary toilet drawings detail 2d view autocad software file
Description
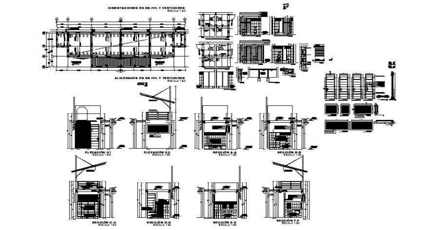
Public sanitary toilet drawings detail 2d view AutoCAD software file that shows sanitary public toilet different sides elevation and sectional details. Sanitary toilet various blocks of water closet washbasin details are also shown in the drawing.
File Type:
DWG
File Size:
852 KB
Category::
Interior Design
Sub Category::
Bathroom Interior Design
type:
Gold
Uploaded by:
Eiz
Luna

