Steel deck with tube plan structure view with detail in auto cad file
Description
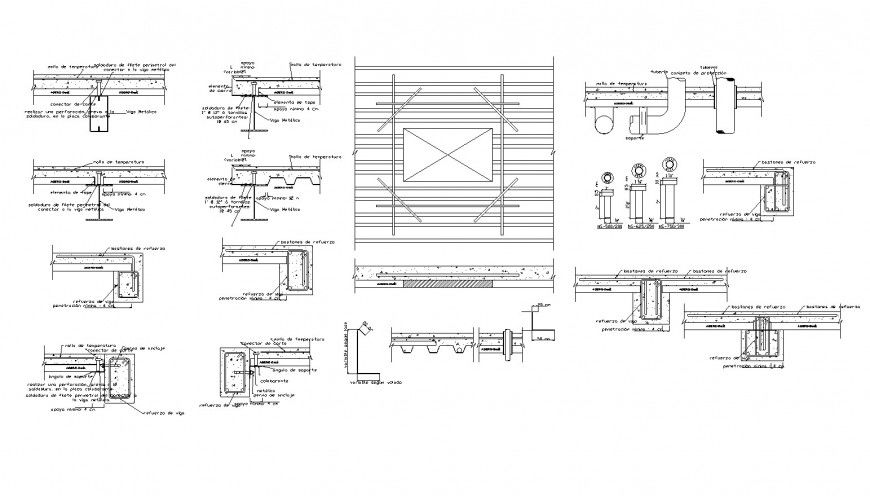
Steel deck with tube plan structure view with detail in auto cad file plan include detail of square bar support on concrete and support area and detail of tube and steel sheet part of steel structure detail with necessary dimension.
Uploaded by:
Eiz
Luna

