Casino and discotheque floor plan of hotel in auto cad software
Description
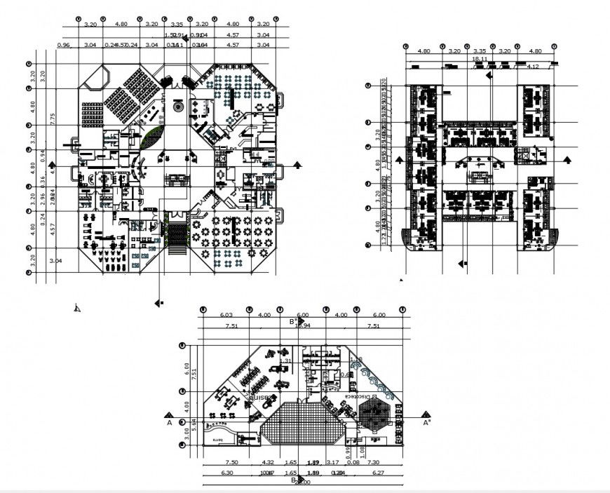
Casino and discotheque floor plan of hotel in auto cad software its include detail of casino with casino gambling area and disco area with discotheque and hotel floor plan include restaurant and washing area in plan.
Uploaded by:
Eiz
Luna

