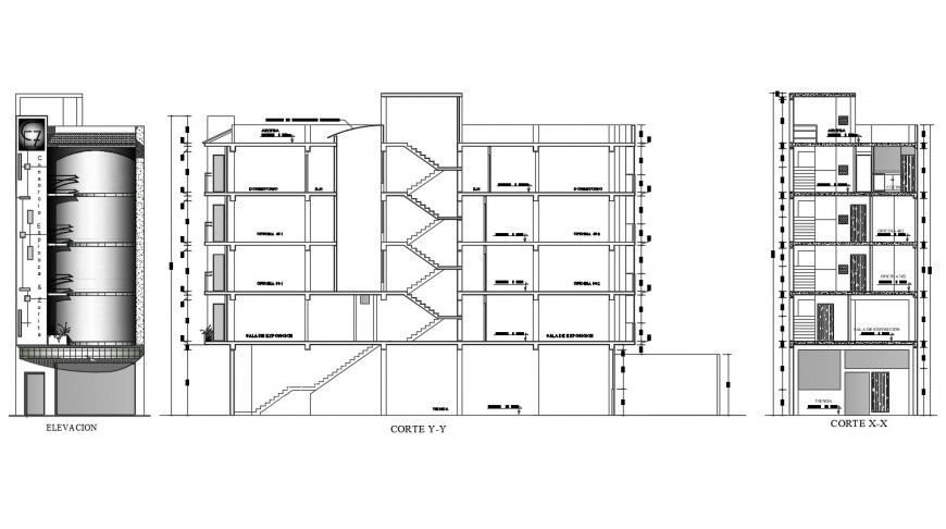
Elevation and section view of apartment in auto cad file
Description
Elevation and section view of apartment in auto cad file elevation include wall and floor and floor level balcony area office stair door and window view, section view include detail of floor and floor level of building.
Uploaded by:
Eiz
Luna

