Residential housing apartment drawings details plan and elevation dwg file
Description
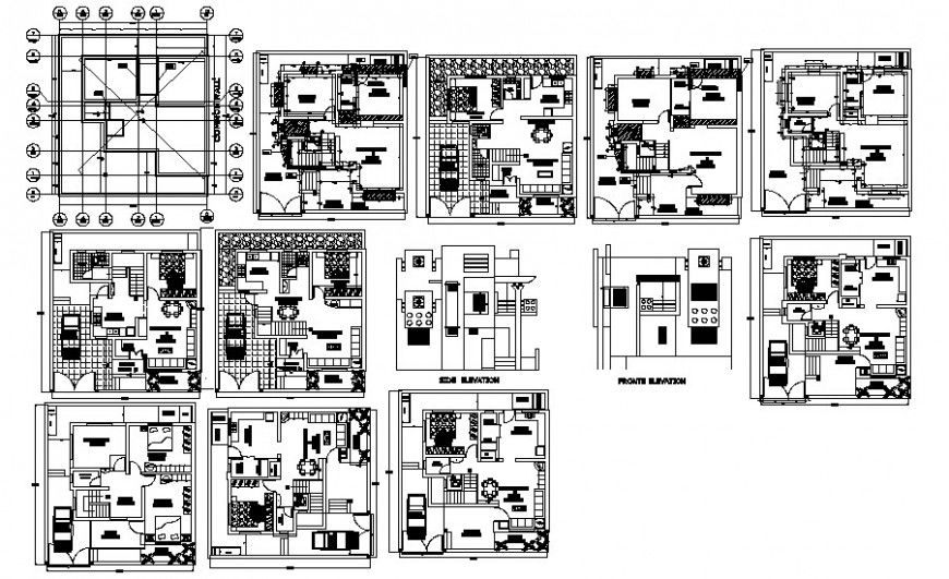
Residential housing apartment drawings details plan and elevation dwg file that shows work plan drawings of building units along with furniture layout plan details and house different sides of elevation details. Parking space details and room details include details of drawings room area bedroom area kitchen area and dimension floor level details.
Uploaded by:
Eiz
Luna

