Floor plan of commercial building in auto cad software
Description
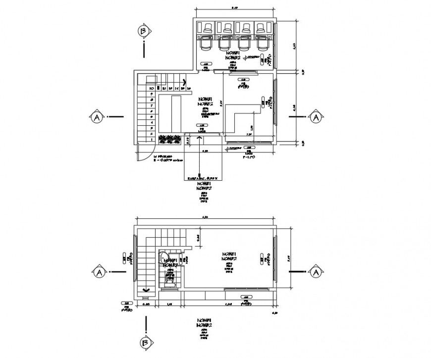
Floor plan of commercial building in auto cad software plan includes detail of area distribution and wall and area distribution admin office area with computer view and washing area in view.

Uploaded by:
Eiz
Luna
