Government Laboratory plan and elevation in auto cad
Description
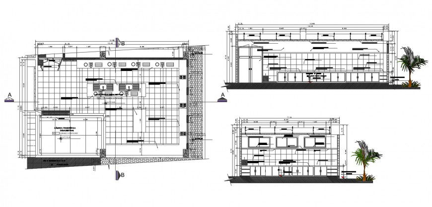
Government Laboratory plan and elevation in auto cad plan include detail of area distribution flooring area and view of laboratory area with its platform and washing area and elevation include detail of platform with sink area and wall support area.
Uploaded by:
Eiz
Luna

