Floor plan elevation and section of collage in auto cad file
Description
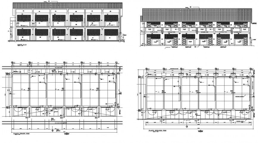
Floor plan elevation and section of collage in auto cad file plan include detail of area distribution and wall area and view of entry way room area view of collage circulation admin and washing area and elevation and section view with floor and floor level.
Uploaded by:
Eiz
Luna
