Cardiac education academy elevation in auto cad file
Description
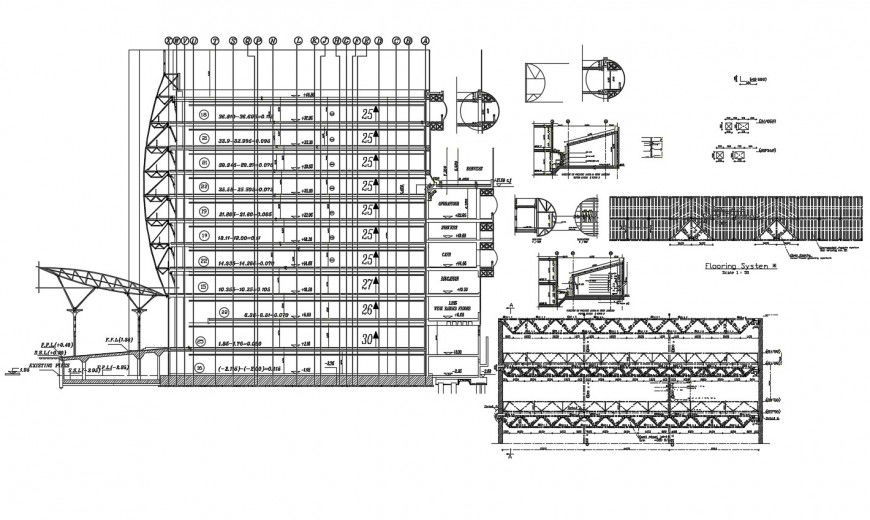
Cardiac education academy elevation in auto cad file it’s including detail of ground area floor level and different floor of lab education area services and operation and detail of roof area plan in view.
Uploaded by:
Eiz
Luna

