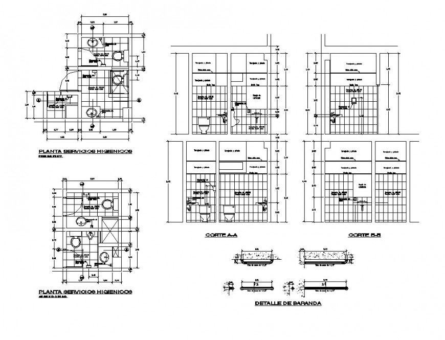
Hygienic service with washing area plan and elevation in auto cad
Description
Hygienic service with washing area plan and elevation in auto cad plan includes detail of tiles flooring and water closet wash basin and water line area wall and door and elevation with floor level of washing area.
Uploaded by:
Eiz
Luna

