Hotel plan with kitchen detail in auto cad
Description
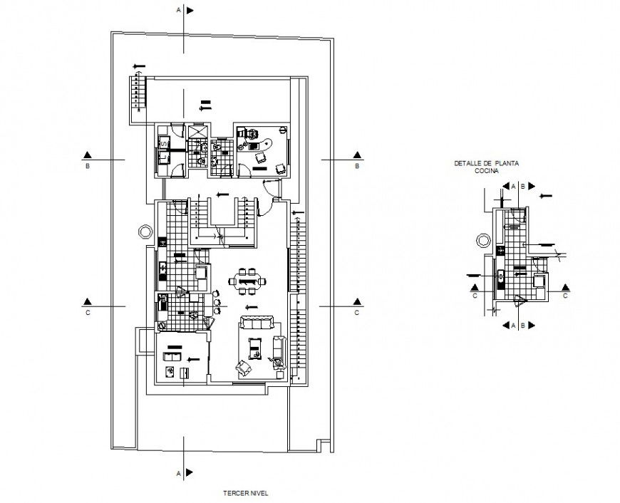
Hotel plan with kitchen detail in auto cad include detail of wall and support area and view of entry way washing area reception kitchen and dining area with bar and seating area, kitchen detail with wall and flooring area door and platform of kitchen.
Uploaded by:
Eiz
Luna

