Septic tank column and stair construction detail in auto cad
Description
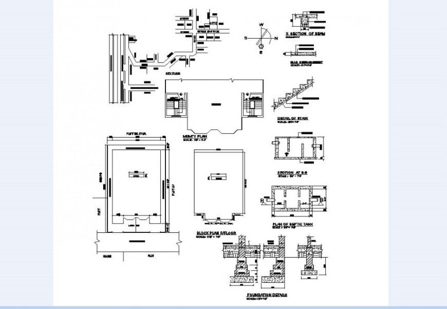
Septic tank column and stair construction detail in auto cad column detail include view of column height and concrete area and stair with step of stair, septic tank view include in and out way with tube in concrete box of septic tank.
File Type:
DWG
File Size:
212 KB
Category::
Construction
Sub Category::
Construction Detail Drawings
type:
Gold
Uploaded by:
Eiz
Luna

