Three story residential bungalow drawings details plan elevation and section dwg file
Description
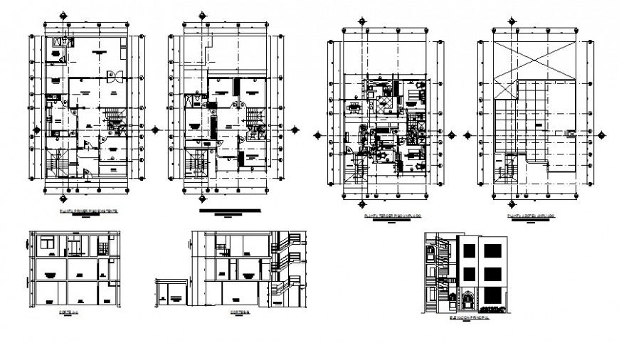
Three story residential bungalow drawings details plan elevation and section dwg file that shows work plan of the house with floor level details and building different sides elevation and sections details along with dimension and hidden line details. Staircase and terrace plan details are also shown in the drawing.
Uploaded by:
Eiz
Luna

