Section and work plan of sanitary public toilet area drawings autocad file
Description
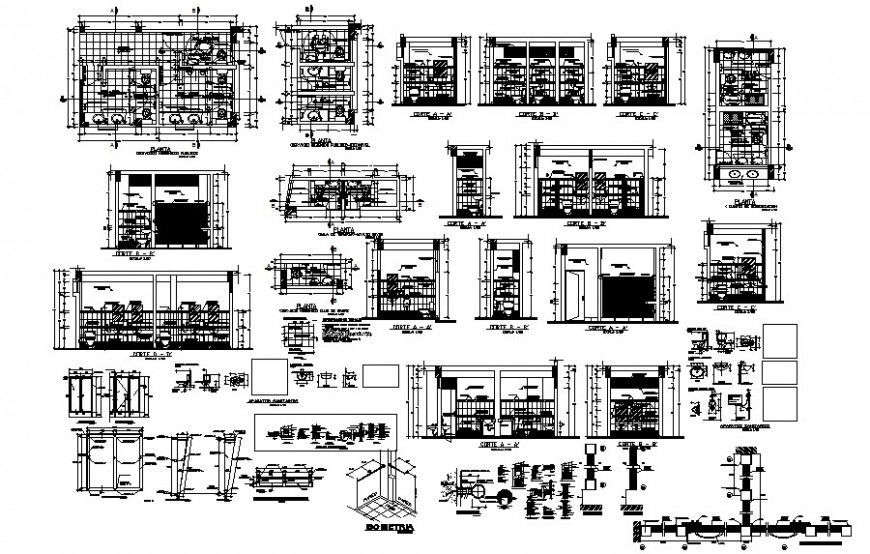
Section and work plan of sanitary public toilet area drawings autocad file that shows work plan of sanitary public toilet area with sanitary blocks details of the watercloset washbasin with different sectional details of sanitary toilet area and dimension details also shown in the drawing.
File Type:
DWG
File Size:
3.3 MB
Category::
Interior Design
Sub Category::
Bathroom Interior Design
type:
Gold
Uploaded by:
Eiz
Luna

