Residential housing units elevation plan and section dwg file
Description
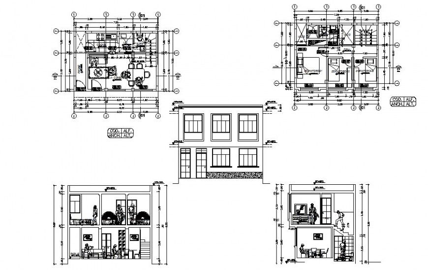
Residential housing units elevation plan and section dwg file that shows a work plan of housing blocks along with floor level details and section line details. House frontal elevation along with section details and furniture layout plan details in the house also shown in drawings with various other details of the house.
Uploaded by:
Eiz
Luna

