Layout plan of housing drawings of building units 2d view dwg file
Description
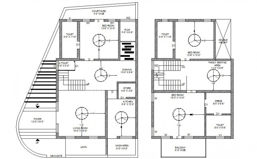
Layout plan of housing drawings of building units 2d view dwg file that shows work floor plan drawings dteais of housing units along with room dimension and rooms details of living room bedroom area drawings room area saniatr toilt and batrhoom area along with staircase and other details of bulding.
Uploaded by:
Eiz
Luna

