Reservoir drawings detail plan and section dwg file t
Description
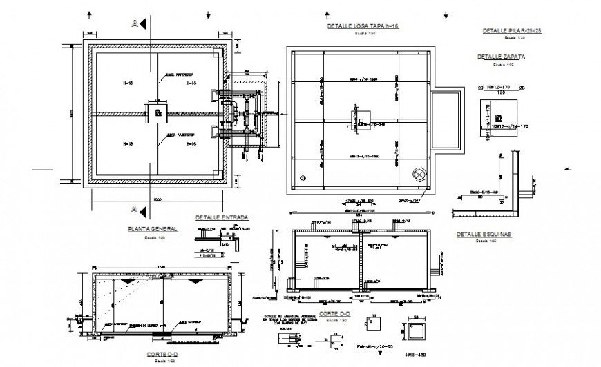
Reservoir drawings detail plan and section dwg file that shows section line details along with dimension and reservoir dimension with water level and concrete masonry details.Reinforcement details and construction details of the reservoir also shown in the drawing.
Uploaded by:
Eiz
Luna

