Different door and window plan and elevation in AutoCAD file
Description
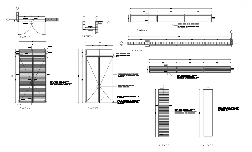
Different door and window plan and elevation in AutoCAD file door include elevation of double door view and plan with revolution area f door and window include detail of different side window with necessary dimension.
File Type:
DWG
File Size:
69 KB
Category::
Dwg Cad Blocks
Sub Category::
Windows And Doors Dwg Blocks
type:
Gold

Uploaded by:
Eiz
Luna

