Sedimentation tank drawings details construction units dwg file
Description
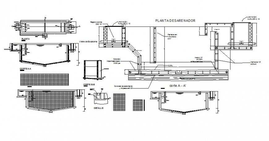
Sedimentation tank drawings details construction units dwg file that shows reinforcement details in tension and compression zone along with dimension and sectional details along with main and distribution hook up and bent up bars details and other construction units details.
File Type:
DWG
File Size:
126 KB
Category::
Urban Design
Sub Category::
Town Water Treatment Design
type:
Gold
Uploaded by:
Eiz
Luna
