Housing units work plan 2d view with foundation plan autocad file
Description
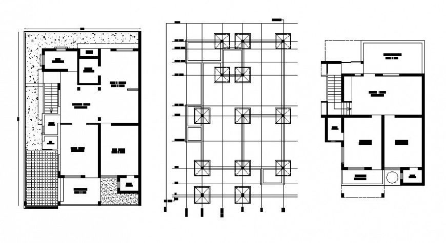
Housing units work plan 2d view with foundation plan autocad file that shows work plan of the house along with footing foundation plan. Room details and staircase details with floor level details are also shown in drawings.
Uploaded by:
Eiz
Luna

