Nursing home drawings details plan elevation and section autocad file
Description
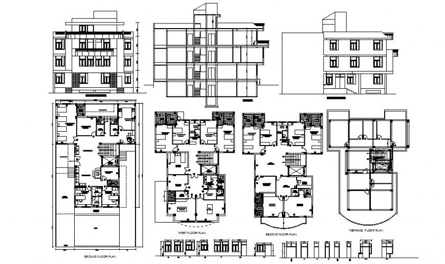
Nursing home drawings details plan elevation and section autocad file work plan of building units along with furnitutre blocks details of building and dimension and hidden line details with road network details and vehicle blocks details.Buildng different sides of elevation and sectional details also shown in drawings.
Uploaded by:
Eiz
Luna

