Electric telephone and data layout plan for airport in AutoCAD file
Description
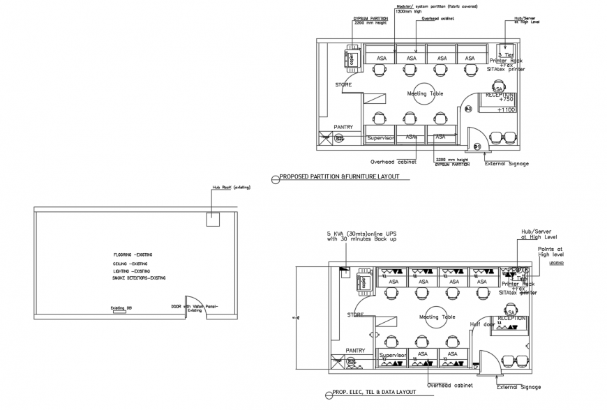
Electric telephone and data layout plan for airport in AutoCAD file its include detail of admin area of airport meeting area and office area with different electrical line telephone and data view with necessary view.
File Type:
DWG
File Size:
173 KB
Category::
Electrical
Sub Category::
Electrical Automation Systems
type:
Gold
Uploaded by:
Eiz
Luna

