Commercial building room drawings 2d view autocad file
Description
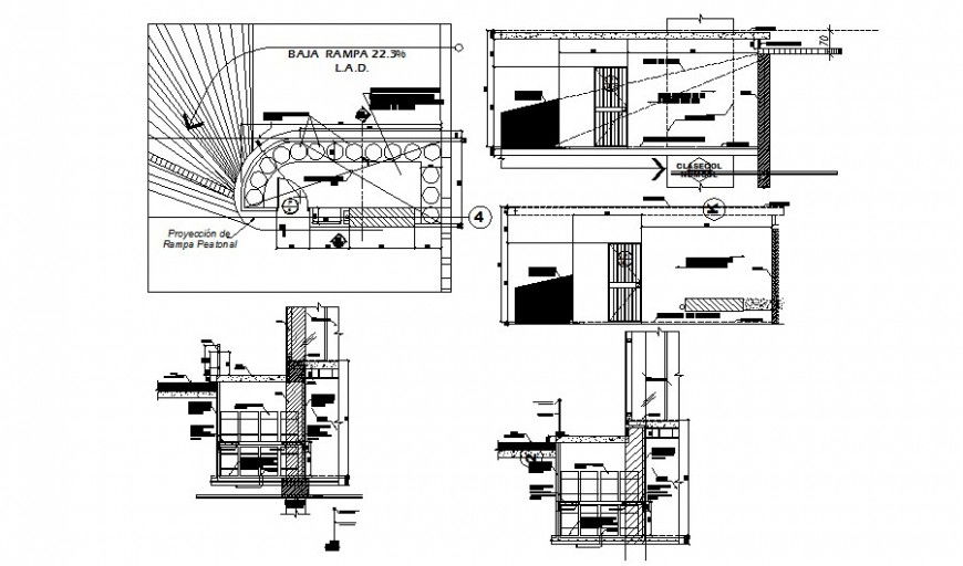
Commercial building room drawings 2d view autocad file that shows door blocks details along with dimension details and hidden line details. Room sectional details with other details also shown in drawings.
Uploaded by:
Eiz
Luna

