Sanitary toilet and bathroom block 2d view autocad file
Description
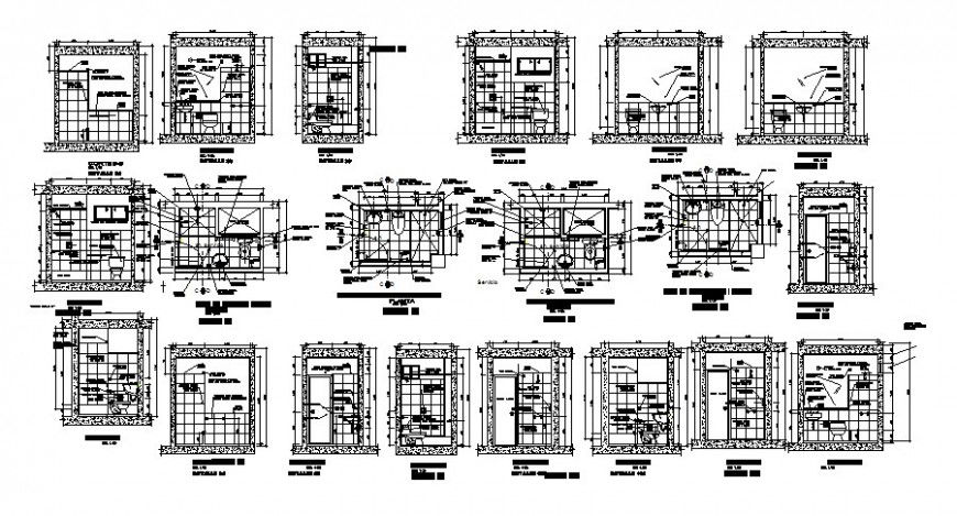
Sanitary toilet and bathroom block 2d view autocad file that shows plan details of toilet area along with sanitary units details of watercloset washbasin details and door ventilation blocks details along with sectional details of the toilet are also shown in drawings.
File Type:
DWG
File Size:
1.9 MB
Category::
Interior Design
Sub Category::
Bathroom Interior Design
type:
Gold
Uploaded by:
Eiz
Luna

