Bathroom toilet area drawings details plan and elevation autocad file
Description
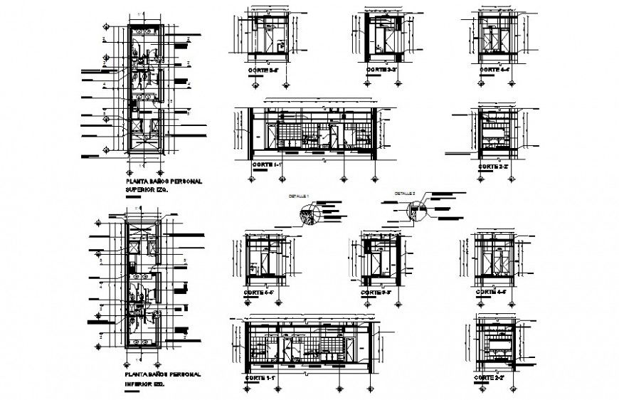
Bathroom toilet area drawings details plan and elevation autocad file that shows plan details of toilet area along with sanitary units details of watercloset washbasin details and door ventilation blocks details along with sectional details of the toilet are also shown in drawings.
File Type:
DWG
File Size:
346 KB
Category::
Interior Design
Sub Category::
Bathroom Interior Design
type:
Gold
Uploaded by:
Eiz
Luna

