Elevation plan and sectional drawings details of building 2d view autocad file
Description
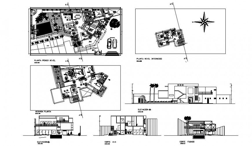
Elevation plan and sectional drawings details of building 2d view autocad file that shows work plan of the house along with Room dimension details and building different sides elevation also shown in drawings.Staircase and leveling details along with other construction blocks details also shown in drawings.
Uploaded by:
Eiz
Luna

