One bhk residential housing units drawings 2d view plan autocad file
Description
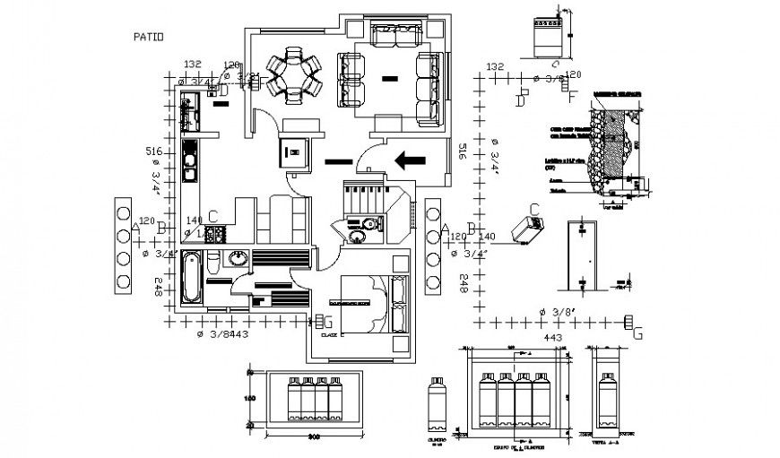
One bhk residential housing units drawings 2d view plan autocad file that shows work plan of the house along with furniture layout details and rooms details of drawings room bedroom kitchen area dining area details. staircase details and dimension details along with saniatry toilet area details also shown in drawings.
Uploaded by:
Eiz
Luna

