Reinforced concrete blocks detail 2d view section AutoCAD file
Description
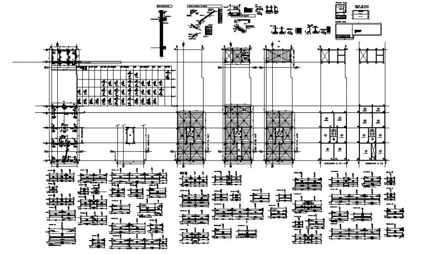
Reinforced concrete blocks detail 2d view section AutoCAD file that shows construction structural blocks details along with dimensions and reinforcement details in tension and compression zone. Main and distribution hook up and bent up bars details and other structural units details also shown in drawings.
File Type:
DWG
File Size:
2.5 MB
Category::
Construction
Sub Category::
Reinforced Cement Concrete Details
type:
Gold
Uploaded by:
Eiz
Luna

