Plan and elevation of house with door and window detail in auto cad file
Description
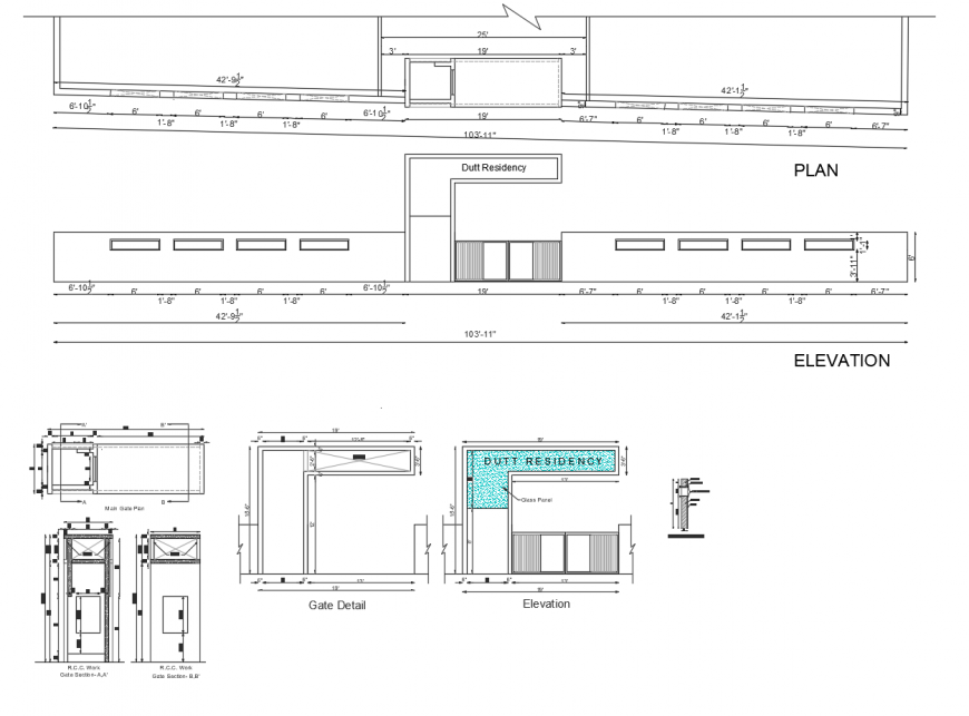
Plan and elevation of house with door and window detail in auto cad file its include detail of plan area distribution wall and area of house and stair and elevation include height with its level view and door and window detail and important dimension.
Uploaded by:
Eiz
Luna

