Different position of kitchen in plan for auto cad file
Description
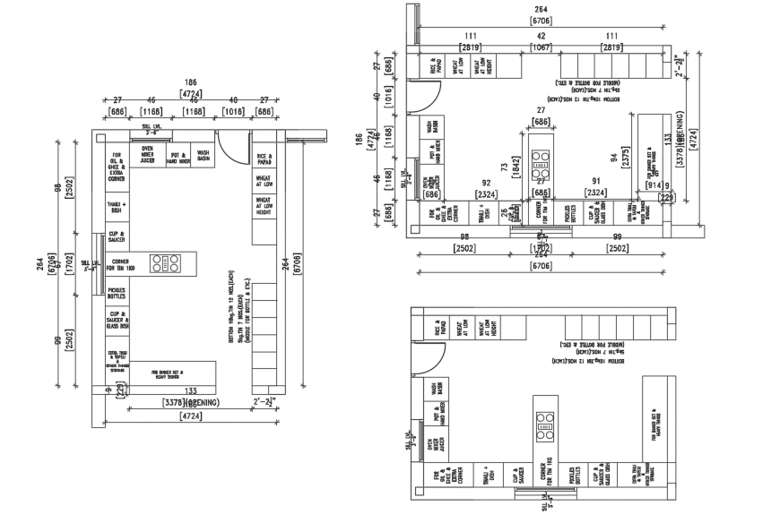
Different position of kitchen in plan for auto cad file plan include detail of wall and area distribution with entry way platform of kitchen include stove Talia and dish fruit pickle and corner area with other part of kitchen in different position with important dimension.
Uploaded by:
Eiz
Luna

