Toilet plan with folded elevation in auto cad file
Description
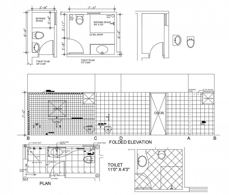
Toilet plan with folded elevation in auto cad file plan include detail of area distribution wall and door with bathing area and water closet and water line, folded elevation include detail of tiles and washing area and door with important dimension.
File Type:
DWG
File Size:
275 KB
Category::
Interior Design
Sub Category::
Bathroom Interior Design
type:
Gold

Uploaded by:
Eiz
Luna

