Single and double door plan with necessary detail in autocad file
Description
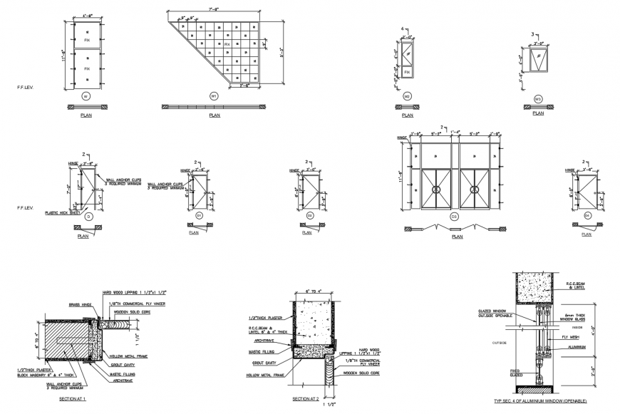
Single and double door plan with necessary detail in autocad file elevation include detail of single and double door plan with its frame width and length and anchor with wall and its support detail and dimension.
File Type:
DWG
File Size:
1.1 MB
Category::
Dwg Cad Blocks
Sub Category::
Windows And Doors Dwg Blocks
type:
Gold
Uploaded by:
Eiz
Luna

