Drawings details of electrical layout plan in building dwg autocad file
Description
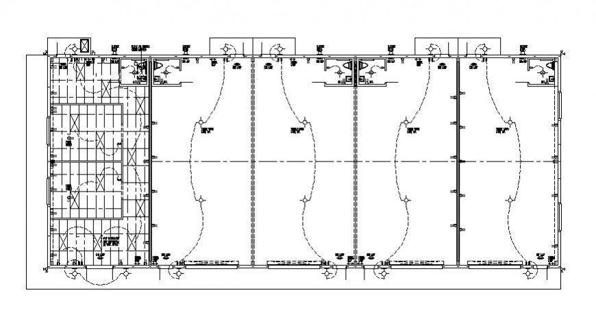
Drawings details of electrical layout plan in building dwg autocad file that shows electrical wirings details along with earthing wire and sanitary toilet area details. Fuse circuit and other details also included in drawings.
Uploaded by:
Eiz
Luna

