Roofing structure sectional drawings detail 2d view autocad file
Description
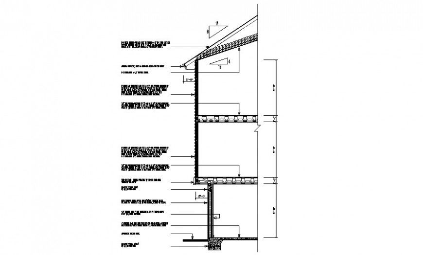
Roofing structure sectional drawings detail 2d view autocad file that shows Roof sectional details with floor slab details and dimension naming texts details. Roofing material details with purlin principal rafter details and cornices details also shown in drawings with wall details and foundation details of the wall.
Uploaded by:
Eiz
Luna

