Drawings of building electrical layout details autocad file
Description
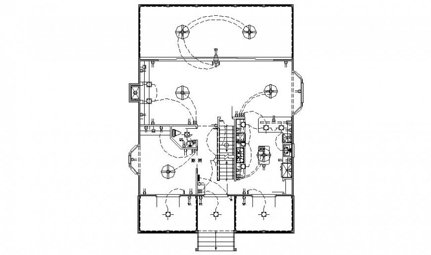
Drawings of building electrical layout details autocad file that shows electrical wirings details along with earthing wire and sanitary toilet area details. Fuse circuit and other details also included in drawings.
Uploaded by:
Eiz
Luna

