Residential housing apartment drawings details floor plan autocad file
Description
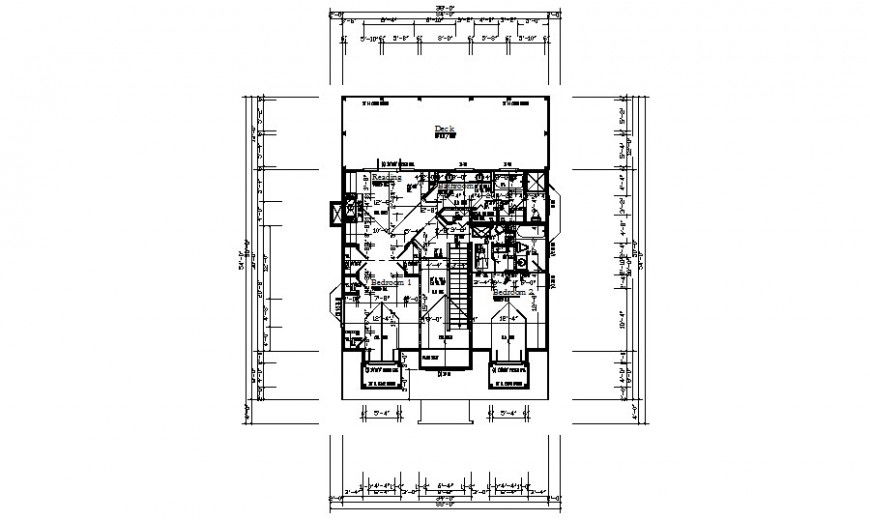
Residential housing apartment drawings details floor plan autocad file that shows work plan of building units with floor level details and dimension hidden line details. Door window blocks details along with staircase and room dimension details. Room details include details of bedroom area drawings room area kitchen and dining area.
Uploaded by:
Eiz
Luna

