Drawings detail of electrical layout plan 2d view autocad file
Description
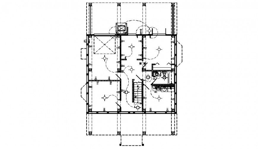
Drawings detail of electrical layout plan 2d view autocad file taht shows electrical wirings details along with earthing wire and sanitary toilet area details. Fuse circuit and other details also included in drawings.
Uploaded by:
Eiz
Luna

