Multi-story commercial building drawings work plan AutoCAD file
Description
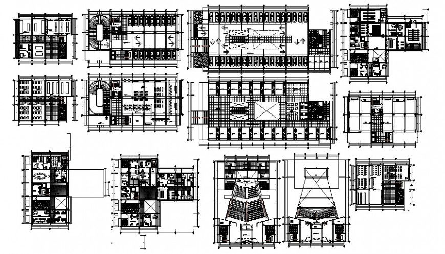
Multi-story commercial building drawings work plan AutoCAD file that shows the floor plan of building unit along with floor level details and staircase details along with ramp details and basement parking space details. Furniture units layout plan details in drawings building also drawings.
Uploaded by:
Eiz
Luna

