Commercial building units detail 2d view drawings AutoCAD software file
Description
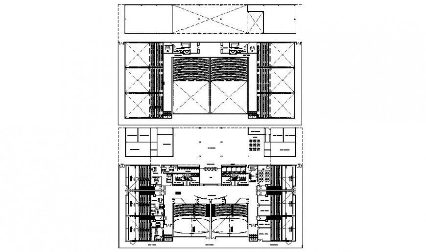
Commercial building units detail 2d view drawings AutoCAD software file that shows work plan of building units along with furniture details and floor level details. Wall and flooring detail with door window blocks details also shown in drawings. Building different sides elevation like frontal elevation and side elevation also shown in the drawing.
Uploaded by:
Eiz
Luna

