Drawing details of door window units 2d view elevation and section in autocad
Description
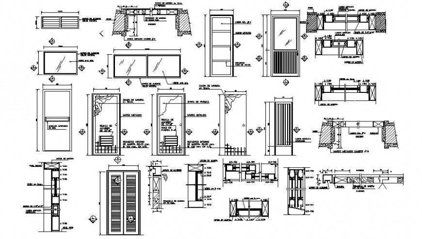
Drawing details of door window units 2d view elevation and section in autocad that shows door and window design details along with door sections details and dimension shape size details. Sectional details of door window block also shown in drawings.
File Type:
DWG
File Size:
178 KB
Category::
Dwg Cad Blocks
Sub Category::
Windows And Doors Dwg Blocks
type:
Gold
Uploaded by:
Eiz
Luna

