Water tank construction details 2d view autocad software file
Description
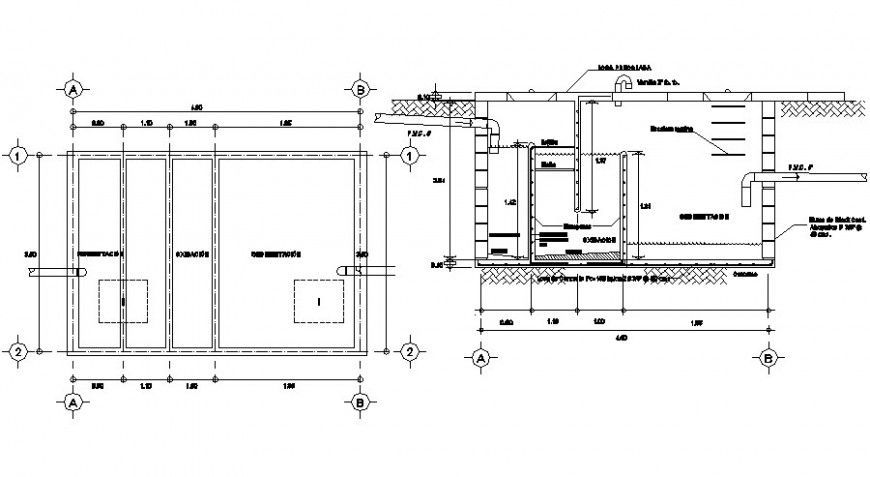
Water tank construction details 2d view autocad software file that shows sectional details of water tank with pipe system details and dimension details. REinforcement details and section line details along with pumping blocks details of valve and tap also shown in drawings.
Uploaded by:
Eiz
Luna

