Footing structure 2d view construction blocks of autocad software file
Description
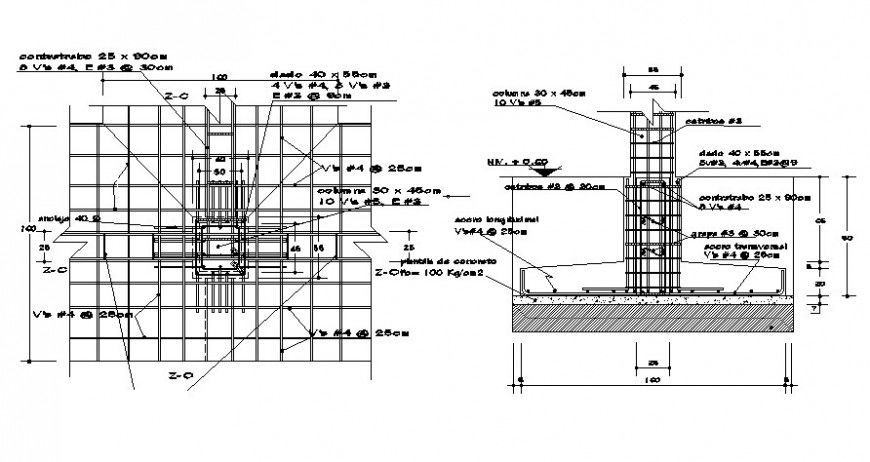
Footing structure 2d view construction blocks of autocad software file that shows reinforcement details in tension and compression zone along with concrete masonry details and main distribution hook up and bent up bars details. Effective cover with stirrups details to hold up bars in position also shown in drawings.
File Type:
DWG
File Size:
49 KB
Category::
Construction
Sub Category::
Reinforced Cement Concrete Details
type:
Gold
Uploaded by:
Eiz
Luna

