Railing and stair support structure view in auto cad file
Description
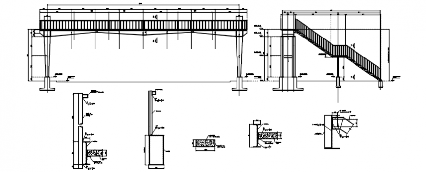
Railing and stair support structure view in auto cad file its include detail of railing with its support and area of stair with step and its support with detail and necessary dimension and angle and bar support view.
Uploaded by:
Eiz
Luna

