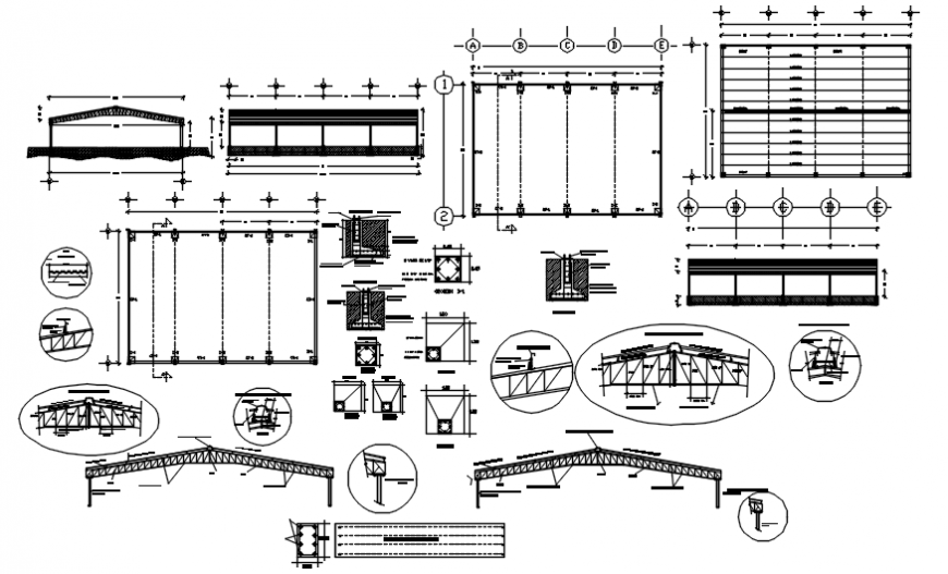
Truss and its steel structural detail in auto cad file
Description
Truss and its steel structural detail in auto cad file its include detail of truss area with roof trusses area and its part of support part and column detail include its plan and elevation.
Uploaded by:
Eiz
Luna

