Plan and elevation of swimming pool area in auto cad file
Description
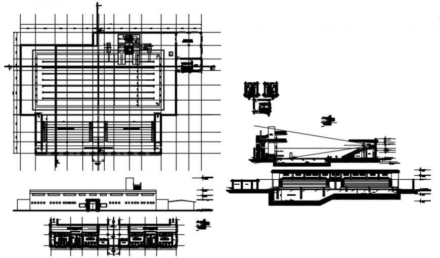
Plan and elevation of swimming pool area in auto cad file plan include detail of wall and base and pool area and elevation include stair and balcony of stair on pool with necessary detail and dimension.
Uploaded by:
Eiz
Luna

