RCC structural unit details are shown in autocad drawing
Description
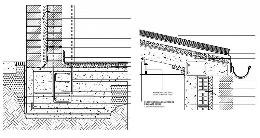
RCC structural unit details are shown in autocad drawings that show Concrete masonry details and reinforcement in tension an compression zone also shown in drawings. Main and distribution hook up and bent up bars details shown in drawings and the structure is a reinforced concrete cement (RCC) structure.
File Type:
DWG
File Size:
61 KB
Category::
Construction
Sub Category::
Reinforced Cement Concrete Details
type:
Gold
Uploaded by:
Eiz
Luna

