Hotel floor plan and elevation in auto cad software file
Description
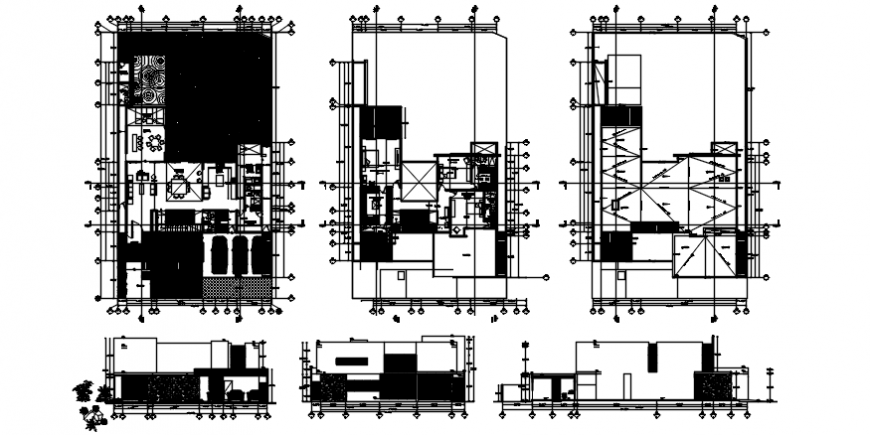
Hotel floor plan and elevation in auto cad software file plan include detail of area distribution wall and circulation area and detail of entry way dining area washing area with hall and elevation include floor and floor level with wall.
Uploaded by:
Eiz
Luna

