Living apartment drawings 2d view floor plan autocad file
Description
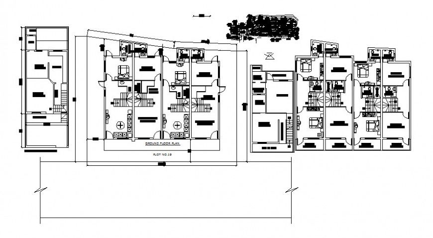
Living apartment drawings 2d view floor plan autocad file that shows floor plan details of the house along with some furniture blocks details and house along with room details of living room details bedroom area kitchen and dining area details.
Uploaded by:
Eiz
Luna

